VEPL Hybrid ETP For Pharma & Hospital Wastewater
Effluent Treatment Plant for the Pharmaceutical & Healthcare Sector
Ventilair Engineers Pvt. Ltd. (VEPL) is a leading manufacturer and turnkey solution provider for Effluent Treatment Plants (ETPs) and Sewage Treatment Plants (STPs), delivering customized and technologically advanced solutions across industrial sectors.
With a dedicated focus on the Pharmaceutical and Healthcare sector, VEPL has successfully installed over 125 ETP/STP units in pharma manufacturing plants, hospitals, research labs, and medical universities, both in India and abroad.
Understanding the Challenge: Pharma & Hospital Wastewater
The pharmaceutical industry and healthcare sector produce effluents that are complex, hazardous, and non-biodegradable, often containing:
- High COD/BOD levels
- Antibiotic residues & Active Pharmaceutical Ingredients (APIs)
- Disinfectants, Detergents, Solvents
- Toxic organics and laboratory waste
- High pH variation and color
These effluents require a robust and multi-stage treatment system, which is where VEPL’s Hybrid ETP technology excels.





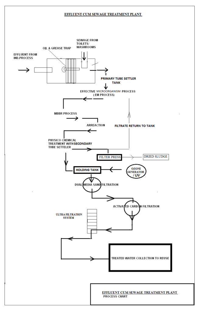
VEPL’s Solution: Hybrid ETP (Mix Biological & Combined Treatment System)
Our Hybrid ETP system for the pharmaceutical industry integrates both physico-chemical and biological treatment processes, ensuring the efficient breakdown of organic pollutants, neutralization of chemical components, and removal of hazardous substances.
Key Treatment Stages:
- Equalization & Neutralization – For flow and pH control
- Physico-Chemical Treatment – Coagulation, flocculation, and heavy metal removal
- Biological Treatment – ASP, MBBR, or SBR based on load and space
- Advanced Treatment (optional) – Ozonation, Activated Carbon Filtration, UF/RO for polishing
- Sludge Management – Efficient dewatering and safe disposal
The result is CPCB-compliant discharge quality and protection of downstream water bodies and public health.
Our Presence in the Sector: Trusted by Leading Institutions
We are proud to serve major groups and institutions in the pharma and healthcare sector, including:
- Subharti University
- Shri Ram University, Dehradun
- Paras Hospital
- ESI Hospital, Himachal Pradesh
- Satyanand Hospital
- Mahagen Imaging Laboratory
We’ve also extended our reach internationally, having successfully exported and commissioned ETPs in Nepal and Bhutan.
Why Choose VEPL for Pharmaceutical ETP Solutions?
Over 125 pharma & hospital installations
Proven Hybrid Treatment Technology tailored for pharma waste
CPCB-compliant results post-treatment
Systems designed for antibiotic and chemical resistance removal
Export experience with international compliance support
Complete in-house design, manufacturing, and after-sales service
Applications:
- Bulk Drug Manufacturing Units
- Formulation Plants
- R&D Laboratories
- Hospitals & Medical Colleges
- Diagnostic Centers & Imaging Labs
Need a Reliable ETP for Pharma or Hospital Wastewater?
Ventilair Engineers Pvt. Ltd. delivers cutting-edge, performance-proven effluent treatment systems designed to meet today’s strict environmental standards in the pharmaceutical and healthcare sector.